方案文本频道
方案文本库
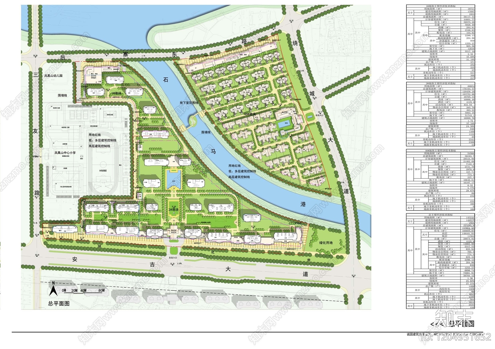
法式新中式其他居住建筑 绿城 住宅 强排
1/
26
Previous
Next
法式新中式其他居住建筑下载
ID: 1204951652
复制
上传作者
linono
上传时间
2025-10-23
项目设计时间:
2016年10月
文件格式:
pdf
文件页数:
26页
项目所在地区:
杭州市
立即下载
收藏
分享
举报
相关推荐
综合
居住建筑
其他居住建筑
别墅建筑
四合院建筑
自建房
相关方案
最新文本
法式新中式其他居住建筑
现代其他居住建筑
日式其他居住建筑
现代新中式其他居住建筑